Strona główna
Mapa serwisu
Zgłoś ofertę
Polityka plików cookies
Kontakt

Wyszukiwarka

Nr oferty
 
 
 
Miejscowość lub dzielnica
Ulica
Powierzchnia
-
Liczba pokoi
-
Cena
-
oferty specjalne
Notes Zgłoś ofertę Consulting Aktualności e- księga wieczysta Mapa serwisu Kontakt

Waluty

USD 3,98 EUR 4,32 CHF 4,53

Na skróty

Mieszkania Sprzedaż Wynajem
Nowe Domy Sprzedaż Wynajem

 

 

 

Oferta nr: 203/783/OMS
Rodzaj oferty
mieszkanie ( sprzedaż )
Lokalizacja:
OŻARÓW MAZOWIECKI
Ulica:
Nadbrzeżna
Cena:
746 900 PLN
Cena za mkw:
11 000 PLN mkw
Powierzchnia:
67.90 m2
Liczba pokoi:
3
Piętro:
1
Liczba pięter:
3
Rodzaj kuchni:
aneks
Stan:
do wykonczenia
Rok budowy:
2025
Winda:
TAK
Garaż:
TAK
Opis
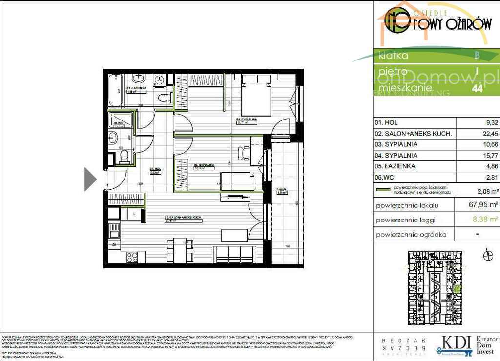
Trzy pokojowe mieszkanie o pow. 67,99 m2 w stanie developerskim z dużym 49,85m2 ogródkiem wewnątrz budynku oraz loggią o pow. 11,58 m2 na poziomie pierwszego piętra zlokalizowane w nowej inwestycji Nowy Ożarów przy ul. Nadbrzeżnej 35. Projekt nieruchomości bazuje na przemyśleniach architektonicznych, dzięki czemu mieszkanie jest komfortowe i funkcjonalne. Trzy piętrowy niski budynek z windą i podziemnym garażem składa się ze 129 mieszkań i 11 lokali usługowych. Mieszkanie jest wysokie 2,9, posiada wysokie okna, przynależą do niego dwa miejsce w garażu podziemnym (płatne dodatkowo 35 tys zł za jedno), i komórka lokatorska na poziomie 0 (płatna dodatkowo 15 tys zł).
Kameralność, doskonałe położenie z dala od hałaśliwych ulic, bliskość infrastruktury komunikacyjnej (kolej, autobus) oraz bezpośredni dostęp do terenów zielonych to niewątpliwie najważniejsze zalety tej lokalizacji, która oddalona jest 8 km od Bemowa i 15 km od centrum Warszawy.

Mieszkanie o powierzchni 68,31 m2
Pokój z aneksem kuchennym- 22,45 m2
Sypialnia- 10,66 m2
Sypialnia- 15,77 m2
Łazienka- 4,86 m2
WC- 2,81 m2
Holl- 8,38 m2
Loggia- 8,38 m2

Cena mieszkania 746 900 zł
można dokupić
1 miejsce w garażu podziemnym cena 35 000 zł
1 miejsce przed budynkiem 18 000 zł

Cena za całość 799 900zł.

Posiadamy w ofercie jeszcze 4 mieszkania w tej inwestycji
- Dwu pokojowe o pow. 42,85 m2 z balkonem 9,76 m2 w cenie 12 000 zł za m2.
- Trzy pokojowe o pow. 57,44 m2 z ogródkiem 67,75 m2
- Trzy pokojowe o pow. 64,79 m2 z loggią o pow 8,13 m2 w cenie 11700 zł za m2 - do mieszkania nie ma przewidzianego miejsca postojowego na zewnątrz budynku.
- Cztero pokojowe mieszkanie o pow. 80,9 m2 z loggią 22 m2 w cenie 11500 zł za m2 - do mieszkania nie ma przewidzianej komórki lokatorskiej.
Do mieszkań przynależą miejsca w garażu podziemnym, miejsca na zewnątrz budynku i komórki lokatorskie.

W razie pytań zapraszamy do kontaktu mailowego lub telefonicznego.




Więcej ofert na SalonDomow.pl

Zamieszczone na naszych stronach oferty nie stanowią oferty w rozumieniu Kodeksu Cywilnego.

Numer licencji agenta odpowiedzialnego zawodowo za wykonywanie umowy pośrednictwa 11251

Kontakt
Paweł Zeliaś
Nr licencji pośrednika odpowiedzialnego zawodowo: 11251
662 867 233
biuro@salondomow.pl
 
Property Consulting
ul. Grochowska 261 lok 12
03- 840 Warszawa
tel.: 662867233
email: biuro@salondomow.pl
Pytanie w sprawie oferty
Imię i Nazwisko 
Telefon 
E-mail 
Treść zapytania 

Wyrażam zgodę na przetwarzanie moich danych osobowych przez firmę Property Consulting dla celów związanych z działalnością pośrednictwa w obrocie nieruchomościami, jednocześnie potwierdzam, iż zostałem poinformowany o tym, iż będę posiadać dostęp do treści swoich danych do ich edycji lub usunięcia.
© 2025 Property Consulting. Wszystkie prawa zastrzeżone.
asaricrm.com - programy dla biur nieruchomości